Trilocale in vendita

Milano, Via Bernardino Verro - Morivione
€ 685.000
3 locali 3 locali
115 Mq 115 Mq
2 bagni 2 bagni

Trilocale in vendita

Milano, Via Bernardino Verro - Morivione

Descrizione annuncio

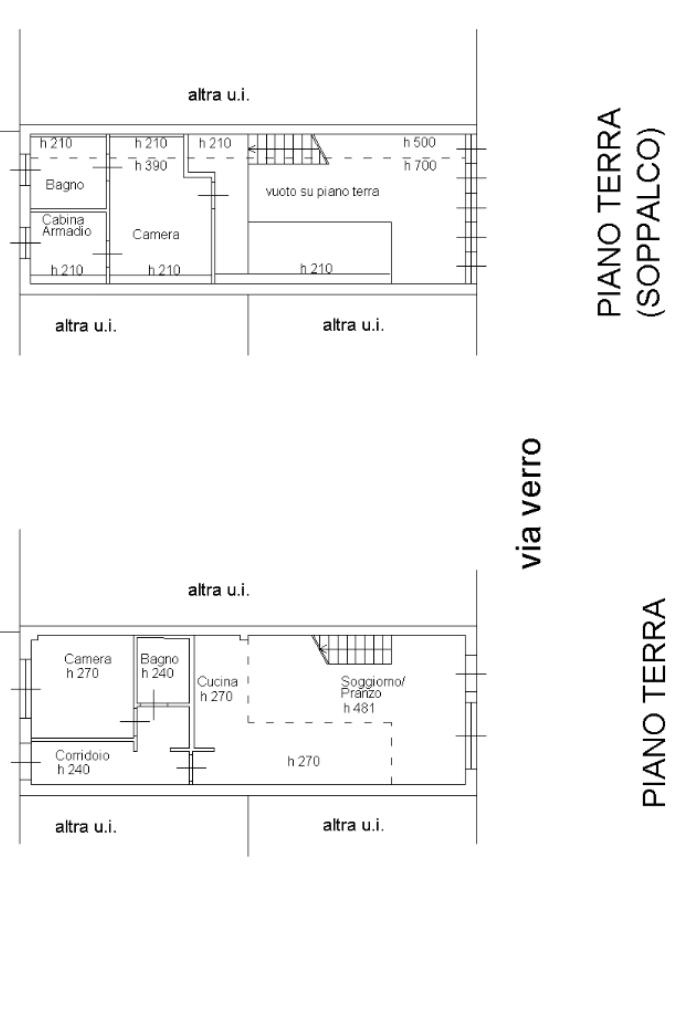
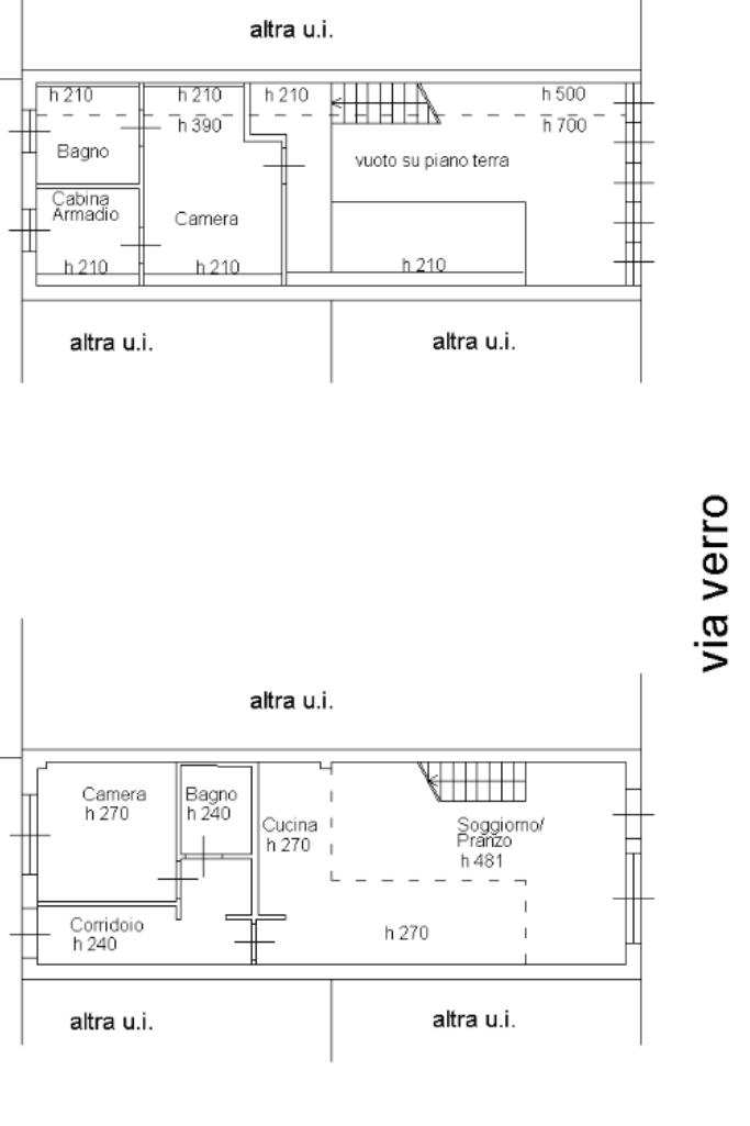
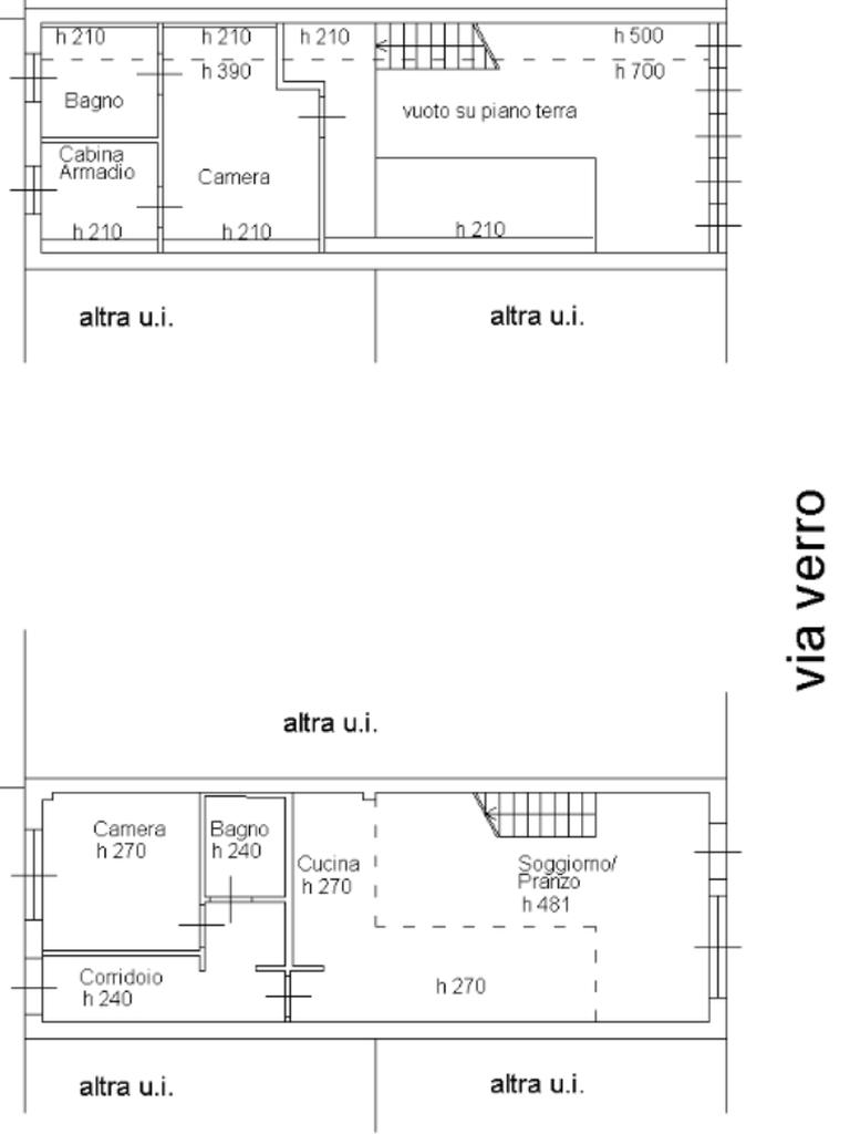
Tecnocasa propone in vendita un ampio trilocale duplex di 115 mq, completamente ristrutturato, situato al piano terra in Via Bernardino Verro.

L’immobile si distingue per la presenza di un doppio ingresso: il primo, dal giardino condominiale, conduce a un comodo disimpegno che collega una camera matrimoniale, un bagno e una spaziosa zona living; il secondo ingresso si apre direttamente sulla zona giorno, rendendo l’accesso pratico e funzionale.

La soluzione, sviluppata su due livelli, offre tutto il comfort di un duplex ben organizzato: dalla zona living si accede tramite scala interna al piano superiore, dove troviamo uno studio, una seconda camera matrimoniale con ampia cabina armadio e un secondo bagno, ideale per garantire privacy e comodità.

A completare la proprietà, un posto auto assegnato, elemento sempre più raro e prezioso in città.

Una soluzione ideale per chi cerca un’abitazione moderna, spaziosa e pronta da vivere, in un contesto tranquillo ma ben collegato.

Le immagini e le informazioni non costituiscono elemento contrattuale.

Contattaci al numero 02 3824 3773 per maggiori informazioni o per fissare una visita.

Mostra tutto

Nelle vicinanze

Trasporto pubblico Trasporto pubblico
Abbiategrasso
Abbiategrasso
1,5 Km
Porta Romana
Porta Romana
1,6 Km
Milano Porta Romana
Milano Porta Romana
2,0 Km
Milano Porta Genova
Milano Porta Genova
2,2 Km
Pezzotti
Pezzotti
540 m
Ricariche auto elettriche Ricariche auto elettriche
A2A Isola Digitale Bocconi
880 m
A2A Università Bocconi
930 m
EnelX EVA+ IP Via La Spezia
1,3 Km
A2A Isola Digitale Corso Lodi
1,7 Km
A2A Corso Lodi
1,8 Km
Scuole Scuole
Scuola primaria Bognetti
160 m
Scuole
260 m
Scuola media statale Elsa Morante
310 m
Scuola del Corpo di Polizia Locale
350 m
Scuola elementare Damiano Chiesa
520 m
Farmacia Farmacia
Farmacia
520 m
La Sapienza
560 m
Farmacia Montagna
720 m
Parafarmacia Esselunga
740 m
Farmacia Vigentina
750 m
Ospedali Ospedali
Ospedale Gaetano Pini
1,7 Km
Casa di Cura La Madonnina
1,7 Km
Casa di cura "Città di Milano"
1,9 Km
Policlinico di Milano
2,1 Km
Ospedali
2,2 Km
Supermercati Supermercati
Penny
380 m
Esselunga sottocasa Pezzotti
470 m
Sapore di mare
510 m
Esselunga di Via Ripamonti
670 m
Carrefour Market
680 m
Negozi Negozi
Negozi
420 m
Le Delizie del Grano
630 m
Pescatore
790 m
Il nido del pane
820 m
Carrefour Express
910 m
Bar Bar
Rocket
560 m
Bar
580 m
Magazzini Generali
630 m
Birrificio Brioschi
660 m
Bollani Milano 1930
750 m
Ristoranti Ristoranti
Dawali
130 m
El Jadida
250 m
LOFT pizza e grill
280 m
L'Anima del Gusto
290 m
Peter Pan
350 m
Mostra tutto

Caratteristiche

Rif.:
61197873
Piano:
Basso di 2 con ascensore
Totale piani:
2
Posti auto:
1
Camere da letto:
2
Arredamento:
Assente
Mostra tutto
Prezzo Prezzo
€ 685.000
Rata mutuo Rata mutuo
€ 3.267 / mese
Spese annue Spese annue
€ 1.500
Proponi il tuo prezzoProponi il tuo prezzo

Classe Energetica

A2
A2
A2
A2
A2
A2
A2
A2
A2
EP globale non rinnovabile:
66.11 kW h/m² anno
EP globale rinnovabile:
66.11 kW h/m² anno
EP invernale del fabbricato:
EP estiva del fabbricato:
Anno di costruzione:
1970
Riscaldamento:
Autonomo
Tipo impianto:
A pavimento
Tipo alimentazione:
Metano

Ti interessa visionare l'immobile?

Fissa un appuntamento  Fissa un appuntamento

Richiedi informazioni

Clicca su Leggi per aprire l'informativa
* Questi campi sono obbligatori

Calcola il tuo mutuo

Semplice e senza impegno
Anticipo

( % )
Mutuo

( % )

pochi semplici passi

inserisci i tuoi dati
Questionario completato
Grazie per aver richiesto un appuntamento senza impegno con un nostro Consulente del Credito e Assicurativo.

Hai inserito correttamente tutti i dati necessari e a breve riceverai una e-mail con un link da convalidare per inviare i tuoi dati.
Affiliato
Stima Immobiliare Srl
P.zza Enrico Chiaradia, 12 20141 Milano (MI)

Il nostro staff


  • Ludovica Cama
    Collaboratrice

  • Francesca Cambria
    Coordinatrice

  • Claudia Ciavattella
    Responsabile

  • Antonio De Stasio
    Responsabile

  • Antonio Mango
    Responsabile

  • Felice Papa
    Responsabile

  • Alberto Piscione
    Collaboratore

  • Marco Pisani
    Responsabile

  • Nicola Emma
    Affiliato
P.zza Enrico Chiaradia, 12 20141 Milano (MI)
Zona: Ripamonti - Spadolini - Ortles
Mostra su mappa
Orari: Lun-Ven : 09.00-20.00 Sab :09.00-13.00
Affiliato
Stima Immobiliare Srl
P.zza Enrico Chiaradia, 12 20141 Milano (MI)

2026 Tecnocasa Franchising S.p.A. - P. IVA 08365160152 - Via Monte Bianco 60/A 20089 Rozzano (MI). Ogni agenzia ha un proprio titolare ed è autonoma. Privacy policy | Policy utilizzo | Cookie policy